277m2
1 storey
5 bedrooms bed
2 bathrooms bath
2 car garage

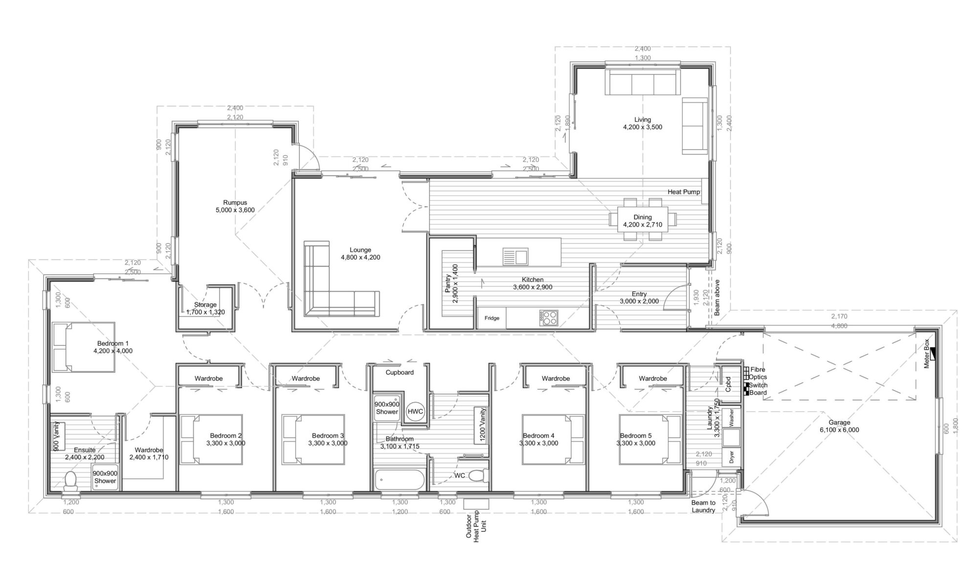
The Fabiola is a large NZ 5 bedroom house plan that ticks all the boxes. Enjoy a spacious, modern home design complete with additional lounge & rumpus room. There is plenty of space in this large 277m2 home.

This lifestyle house plan combines functionality and style with great indoor/outdoor flow from an entertainers kitchen across an open plan living out to a large patio area with room for a spa.

You’ll love the street appeal of this contemporary house plan as you drive up to your new home. This modern house plan features a luxurious master suite, with spacious walk-in robe and ensuite. The additional 4 bedrooms are all large in size, with great wardrobe space and family-friendly 3-in-1 bathroom.

We have designed a variety of house plans for New Zealand living and have a range of lifestyle house plans and pavilion home designs to suit.

 

Orange Homes have been building homes in Canterbury for over 40 years, we are experts in home building here in Christchurch, holding strong relationships with suppliers and contractors alike. Being one of the original home building companies in Christchurch, we are experts in building new homes to Canterbury conditions.

Download the Fabiola House Plan

Fill in your details below to download the plan.

Download Plan

X

Download Plan

Download Plan

Enquire

Enquire

Tell us a bit about your building needs and we will get in touch.

you might be interested in?

Clydesdale

There's a lot to love about this 5 Bedroom Lifestyle Plan. Designed to enjoy all day sun, from the entertainers kitchen to the entertaining with great indoor/outdoor flow, this home is sure to delight.

Lizzipan

This 5 bedroom plan is perfectly appointed for growing families seeking plenty of space. Thoughtfully designed for lifestyle living, including a attached self-contained unit.

Colorado

The Colorado is a large NZ pavilion house plan with 4 bedrooms, 2+ bathrooms and 310m2. Relax and enjoy your lifestyle section in the Colorado, designed with space, comfort and style in mind.

Newsletter