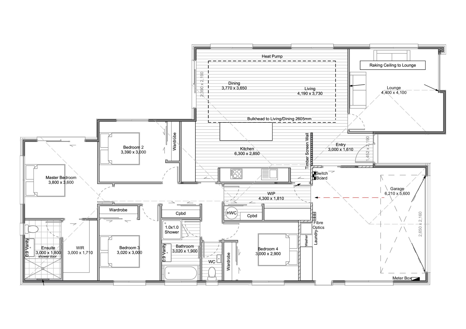
205m2
1 storey
4 bedrooms bed
2 bathrooms bath
2 car garage

Download the Rangiora: Bellgrove Show Home House Plan

Fill in your details below to download the plan.

Download Plan

X

Download Plan

Download Plan

Enquire

Enquire

Tell us a bit about your building needs and we will get in touch.

you might be interested in?

Falcons Landing Show Home

We're excited to announce that our newest Showhome is now open in Falcon Road, Falcons Landing

Original Te Whāriki Show Home

Our show home at Te Whāriki, Lincoln, has been beautifully designed for relaxed family living.

Monarch Show Home

Our stunning hi-spec Showhome is a must-see! From expansive entry and open-plan living to spacious master suite with gorgeous walk-in robe and ensuite. This beautifully designed home is brimming with inspiration.

Newsletter