230m2
1 storey
3 bedrooms bed
2 bathrooms bath
2 car garage

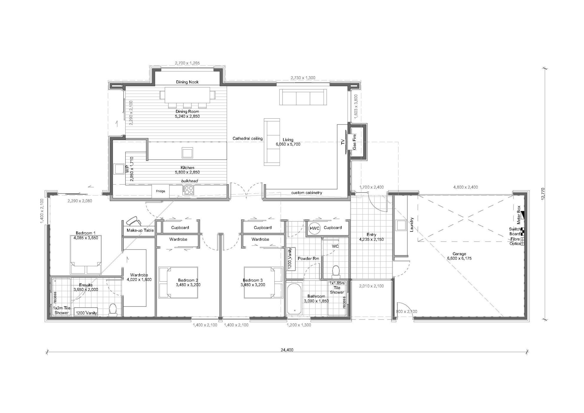
The Sierra combines functionality and style, with plenty of bang for your buck! An entertainers delight with a cathedral ceiling, designer galley kitchen and scullery and open-plan living flowing to your outdoor living space. The living features a gas fireplace and custom cabinetry for a touch of finesse. The spacious master suite is sure to impress with a make-up table, oversized walk-in robe and ensuite with his & hers vanity. This modern house plan consists of 3 bedrooms, 2 bathrooms and 2 car garage. All 3 bedrooms are generous in size, and there is plenty of hallway storage. The main bathroom is both generous in size and functional for busy families.

This well designed house plan combines functionality and style. A contemporary design with plenty of street appeal and plenty of wow, the Sierra creates a stylish and easy-living atmosphere.

 

We have designed a variety of house plans for New Zealand living and have a range of 3 bedroom house plans and 230m2 designs to suit.

Orange Homes have been building homes in Canterbury for over 40 years, we are experts in home building here in Christchurch, holding strong relationships with suppliers and contractors alike. Being one of the original home building companies in Christchurch, we are experts in building new homes to Canterbury conditions.

A flat plan of the Sierra - a beautiful and spacious NZ house plan with a 230 m2 floor area, 3 Bedrooms, and 2 Bathrooms.

Download the Sierra House Plan

Fill in your details below to download the plan.

Download Plan

X

Download Plan

Download Plan

Enquire

Enquire

Tell us a bit about your building needs and we will get in touch.

you might be interested in?

Les Arcs

Inspired by midcentury architecture, our Les Arcs plan boasts 3 spacious bedrooms, large living spaces and designer features that add a wow factor to this build.

Jutland

This spacious 3 bedroom NZ pavilion house plan with luxurious master suite, entertainers kitchen and open plan living with excellent indoor/outdoor flow.

Monarch

Our large, hi-spec show home in Lincoln, has been beautifully designed for relaxed family living. It features 4 bedrooms, 2 bathrooms, 2 living rooms, and a galley kitchen with large pantry, plus a double garage.

Newsletter